dbldreambuildersltd.com

Cha 82/2, 82/3 Progati Sarani, North Badda

DBL Wahid Palace

7/6, Shantibag, Dhaka-1217

DBL Dream Builders Ltd. proudly presents our most iconic residential project in the heart of Shantibag: DBL Wahid Palace.
This 180-foot-high tower embodies luxury and comfort, with stunning panoramic views over the city. Every detail of these modern residences reflects our commitment to quality, from environmentally sustainable design to state-of-the-art amenities that redefine urban living.
Experience elevated living at DBL Wahid Palace—where elegance meets lifestyle in the heart of the city.

FEATURES

180’ Feet tall high-end residential tower at Shantibag

Meticulously designed drop-off, reception and common areas

25’-0’’ Feet high grand entrance

Efficiently designed floor space providing maximum flexibility for interior design

02 High-speed international brand passenger elevators

State-of-the-art fire detection and fighting system

Security surveillance system with
24/7 monitoring facilities

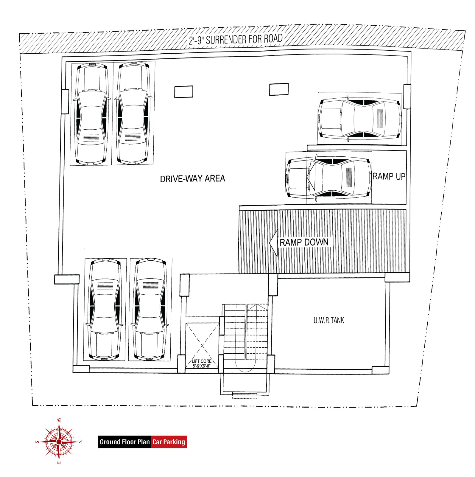
Ground Floor car parking with ventilation system

Building automation system (BMS) for safe & efficient facility management

Full-load synchronized generator for
uninterrupted power supply

Smart office automation system (optional)

Management office & drivers waiting rooms with washrooms

OVERVIEW

Project NameDBL Wahid Palace.
Address

7/6, Shantibag, Dhaka-1217

Size of FlatType-A: 1650 sft, Type-B: 1650 sft
Land Size05 Katha
Building HeightG+9= 10 (Ten) Storied
Road Width25′ wide at the South
Type of Building

Residential Appartment

Ground Floor Parking & 1st to 9th floor Appartment

No of Building01 (One)
No of Flat18
No of Flat per Floor02
Total Parking18 Vehicles
No of Lift01
No of Stair01
DeveloperDBL Dream Builders Ltd.
ConsultantATARIYA Consultants & Sketch Architects Engineers
RegistrationWithin 90 days after Handover

To download the Brochure, Please click the button below

GALLERY

LOCATION

ENQUIRY